Baumooi
Obra nueva
De la idea a tu casa
En nuestro estudio, escuchamos tu forma de vivir y la del lugar: parcela, orientación, vistas y clima. Desde el primer momento trabajamos contigo para dar forma a la casa que imaginas, con una propuesta inicial que verás en renders 3D y opciones de presupuesto para elegir con calma el alcance que mejor encaje contigo.
Te acompañamos en todo el proceso: anteproyecto, Proyecto Básico para licencia, Proyecto de Ejecución con detalles y mediciones, y coordinación de ingenierías (estructura, instalaciones, eficiencia). Gestionamos trámites y visado, comparamos ofertas de constructoras con transparencia y llevamos la dirección de obra, cuidando plazos, calidad y coste como si fuera nuestra.
El objetivo es entregarte tu vivienda lista para vivir, precisa en el detalle y serena en la atmósfera. Queremos que el camino sea sencillo y claro: decisiones informadas, seguimiento cercano y un resultado que supere tus expectativas y refleje tu visión.
Obra nueva
Proceso
De principio a fin
1.Briefing
Objetivo: entenderte. Requisitos, presupuesto, plazos y cómo quieres vivir.
Tú aportas: ideas, referencias y condicionantes.
Nosotros: definimos alcance y calendario.
2. Estudio del entorno
Parcela, normas urbanísticas, orientación, vistas, clima y topografía.
Resultado: criterios de implantación y oportunidades del lugar.



3.Esquema Proyectual
Primeras plantas: organización de usos, circulaciones y relación interior–exterior.
Entregable: planos base (bocetos y distribución) para decidir con claridad.
4.Modelado
Levantamos la casa en 3D para ver proporciones, luz y espacios.
Ventaja: comprensión real del proyecto antes de avanzar.
5.Renders 3D
Imágenes fotorrealistas de interior y exterior: materiales, luz y atmósfera.
Sirven para validar decisiones y ajustar detalles finos.
6.Modificaciones | Elección de materiales
Ajustes finales sobre planos y 3D; selección de acabados, carpinterías, iluminación.
Cierre: paquete listo para licencias y fase de obra con criterios definidos.


Obra nueva
Ámbito
Diseñamos donde estés
1.Alcance Nacional
Estamos en la Costa Blanca, pero proyectamos en toda España. Analizamos clima, normativa y contexto de cada lugar para que tu casa funcione desde el primer día — mismo interlocutor, mismo proceso, estés donde estés.
2.Presencia Local
Viviendas reformadas y en uso que validan nuestro método: luz, materialidad y detalle al servicio de cada parcela y cliente.
1.Alcance Nacional
Estamos en la Costa Blanca, pero proyectamos en toda España. Analizamos clima, normativa y contexto de cada lugar para que tu casa funcione desde el primer día — mismo interlocutor, mismo proceso, estés donde estés.
2.Presencia Local
Viviendas reformadas y en uso que validan nuestro método: luz, materialidad y detalle al servicio de cada parcela y cliente.
Obra nueva
Planes
3 Formas de dar vida a tu hogar
Desde un acompañamiento esencial hasta un diseño integral, elige cómo quieres que hagamos realidad tu nueva vivienda.
Servicios
Proyecto Básico y de Ejecución
3D esquemático de la vivienda
Dirección de obra mínima
Tramitación de licencia y visado
Esencial
Todo lo necesario para construir una vivienda y obtener licencia de obra.
Honorarios
_
Tasas e impuestos no incluidos / Hasta 2 revisiones incluidas
Más detalle en materiales, acabados e interiores para que tu cada refleje tu estilo.
Servicios
Planos de acabados y detalles constructivos
Selección de materiales y paleta de acabados
Estudio de iluminación básica por estancias
Diseño preliminar de interiorismo
Coordinación con fabricantes para presupuesto orientativo
Vistas 3D preliminares de estancias principales
Personalizado
: incluye todo lo Esencial +
Honorarios
_
Tasas e impuestos no incluidos / Hasta 2 revisiones incluidas
Un proyecto completo con interiorismo integral, paisajismo y cada detalle pensado para ti.
Servicios
Diseño integral de interiores
Iluminación avanzada por estancias y ambientes
Detalles especiales y mobiliario a medida
Diseño de exteriores y paisajismo
Integración de domótica avanzada
Renderización fotorrealistas de los espacios
Integral
: incluye todo lo Personalizado +
Honorarios
_
Tasas e impuestos no incluidos / Hasta 2 revisiones incluidas
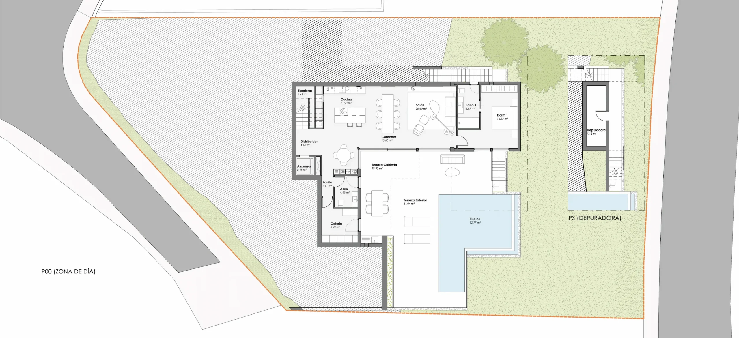
Proyecto:
Vivienda unifamiliar en Alicante
Cliente:
Baumooi
Dirección:
Avd. Salamanca 42, Alicante
Obra nueva
Costes
Desglose estimado de tu vivienda unifamiliar: Construcción, honorarios, tasas e impiestos
1.Construcción y proyecto
Construcción
Ejecución completa de la obra según proyecto aprobado
_ € (+IVA 10%)
Honorarios arquitecto
Proyecto, diseño y dirección de obra
Según plan € (+IVA 21%)
Honorarios arquitecto técnico
Dirección de ejecución y coordinación de seguridad
Según plan € (+IVA 21%)
Total 1
_ € (+IVA)
2. Tasas, licencias e impuestos
Al inicio del proyecto
ICIO (3,5% PEM)
Impuesto municipal sobre construcciones y obras
_ € (sin IVA)
Tasas municipales
Tramitación administrativa y gestión de licencias
_ € (sin IVA)
Tasas de organismos
Industría, energía, etc. (legalizaciones varias)
_ € (sin IVA)
Fianza (recuperable)
Depósito municipal devuelto al finalizar la obra
Al terminar la obra
_ € (sin IVA)
Licencia 1a ocupación
En la escritura/legalislación
Permiso final para habitar la vivienda
_ € (sin IVA)
Notaría
Escritura pública y trámites notariales
_ € (+IVA 21%)
Registro propiedad
Inscripción en el Registro de la Propiedad
_ € (+IVA 21%)
Impuesto escritura
Impuesto asociado a la formalización de la escritura
_ € (+IVA 21%)
Total 2
_ € (+IVA)
3. Estudios y conexiones
Estudio geotécnico
Análisis del terreno para alimentación segura
_ € (IVA 21%)
Levantamiento topográfico
Levantamiento planimétrico de la parcela
Según parcela (+IVA 21%)
Conexión de agua
Alta y acometida según compañia suministradora
Según compañia (+IVA 21%)
Conexión eléctrica (aprox.)
Alta y acometida según distribuidora
Según compañia (+IVA 21%)
Revisión energética
Certificación de eficiencia energética
_ € (+IVA 21%)
Revisión acústica
Ensayo de aislamiento acústico de la vivienda
_ € (+IVA 21%)
Total 3
_ € (+IVA)
Proyecto:
Vivienda unifamiliar en Alicante
Cliente:
Baumooi
Dirección:
Avd. Salamanca 42, Alicante
TOTAL ESTIMADO (sin IVA) 1+2+3: _ €
TOTAL ESTIMADO: _€
Las cantidades son estimadas. Pueden variar según el proyecto definitivo, licencias municipales e impuestos aplicables
1.Construcción y proyecto
Construcción
Ejecución completa de la obra según proyecto aprobado
_ € (+IVA 10%)
Honorarios arquitecto
Proyecto, diseño y dirección de obra
Según plan € (+IVA 21%)
Honorarios arquitecto técnico
Dirección de ejecución y coordinación de seguridad
Según plan € (+IVA 21%)
Total 1
_ € (+IVA)
Al inicio del proyecto
2. Tasas, licencias e impuestos
ICIO (3,5% PEM)
Impuesto municipal sobre construcciones y obras
_ € (sin IVA)
Tasas municipales
Tramitación administrativa y gestión de licencias
_ € (sin IVA)
Tasas de organismos
Industría, energía, etc. (legalizaciones varias)
_ € (sin IVA)
Fianza (recuperable)
_ € (sin IVA)
Depósito municipal devuelto al finalizar la obra
Al terminar la obra
Licencia 1a ocupación
Permiso final para habitar la vivienda
_ € (sin IVA)
En la escritura/legalislación
Notaría
Escritura pública y trámites notariales
_ € (+IVA 21%)
Registro propiedad
Inscripción en el Registro de la Propiedad
_ € (+IVA 21%)
Impuesto escritura
Impuesto asociado a la formalización de la escritura
_ € (+IVA 21%)
Total 2
_ € (+IVA)
3. Estudios y conexiones
Estudio geotécnico
Análisis del terreno para alimentación segura
_ € (IVA 21%)
Levantamiento topográfico
Levantamiento planimétrico de la parcela
Según parcela (+IVA 21%)
Conexión de agua
Alta y acometida según compañia suministradora
Según compañia (+IVA 21%)
Conexión eléctrica (aprox.)
Alta y acometida según distribuidora
Según compañia (+IVA 21%)
Revisión energética
Certificación de eficiencia energética
_ € (+IVA 21%)
Revisión acústica
Ensayo de aislamiento acústico de la vivienda
_ € (+IVA 21%)
Total 3
_ € (+IVA)
Obra nueva
Dudas
¿Tienes otra pregunta? Hablemos
¿Trabajáis con mi constructora?
Sí; pedimos oferta, revisamos mediciones y coordinamos la obra.
¿Puedo saber el coste antes de empezar?
Estimación en anteproyecto y cierre con mediciones y comparativa.
¿Se pueden hacer cambios durante la obra?
Sí, con parte de cambio y actualización de coste y plazo.
¿Ofrecéis llave en mano?
Podemos coordinar ingenierías, interiorismo, paisajismo y FF&E.